Property Details
Inspect Sat 10:30am-11:00am and mid week any time by appointment.
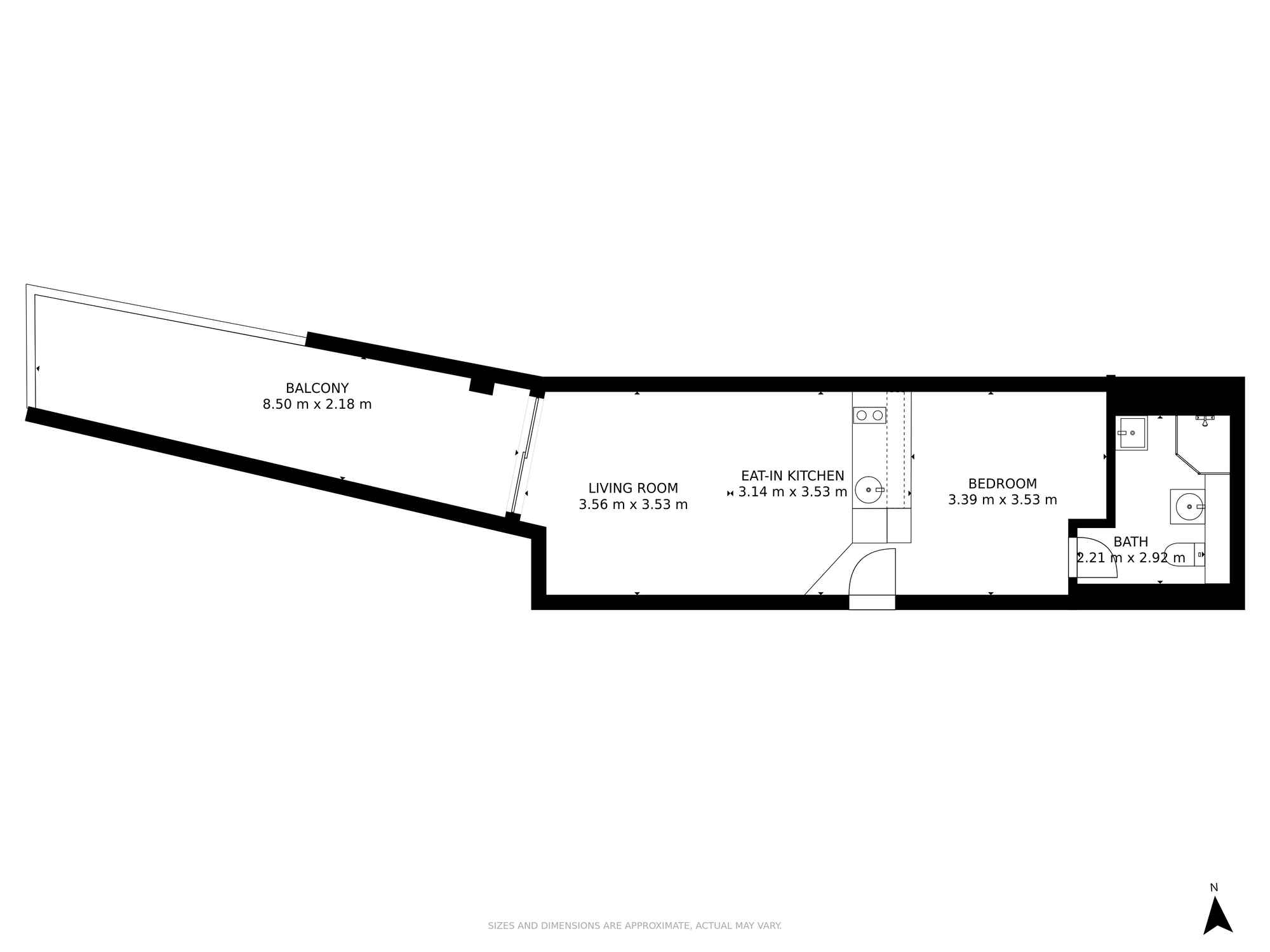
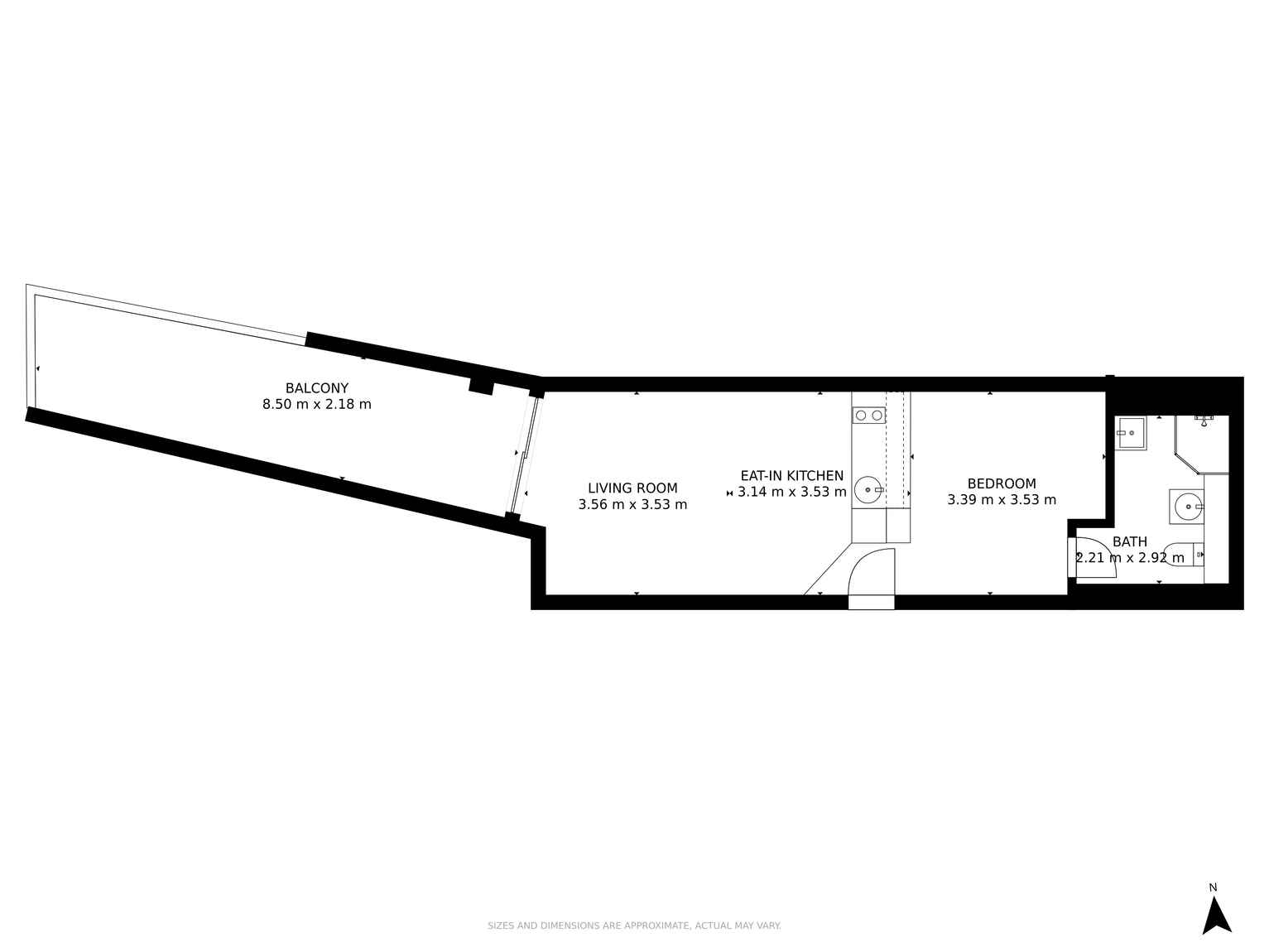
Perfectly positioned right where you can experience the best of Neutral Bay life, this sleek oversized 57 sqm (strata area including terrace) studio/separate bedroom apartment is well poised with an array of shops, restaurants, and great coffee at the doorstep. The smartly designed property is ready to enjoy and makes a safe and secure lifestyle choice with good quality finishes throughout. It's also well located within strolling distance to Military Road's transport for a quick and easy CBD commute.
> A functional interior design with an open living and dining area
> Freshly presented throughout and featuring cool tiled flooring
> A long courtyard-sized terrace captures a great leafy outlook
> Peaceful double bedroom that comes fitted with a built-in robe
> Modern kitchen plus a good-sized bathroom with internal laundry
> Security basement car space, intercom entrance, and lift access
> Positioned within the well-maintained Renoir security building
> A solid investment with excellent growth and rental prospects
Outgoings (p.q. approx.):
Strata $1,017; Council $271; Water $144.
Size: 57 sqm including terrace + 13 sqm parking




















