Property Details
A premium location within footsteps to Military Road's great food, coffee, transport, and the Orpheum Theatre gives this generous one-bedroom security apartment superb lifestyle appeal. Well-appointed and freshly presented throughout, it offers a quality home of quiet privacy with the emphasis on convenience, as it's well-positioned in the sought-after Cremorne property market. All the elements of entry-level or investment success are here with a readymade home in a well-maintained boutique complex offering solid growth and rental prospects.
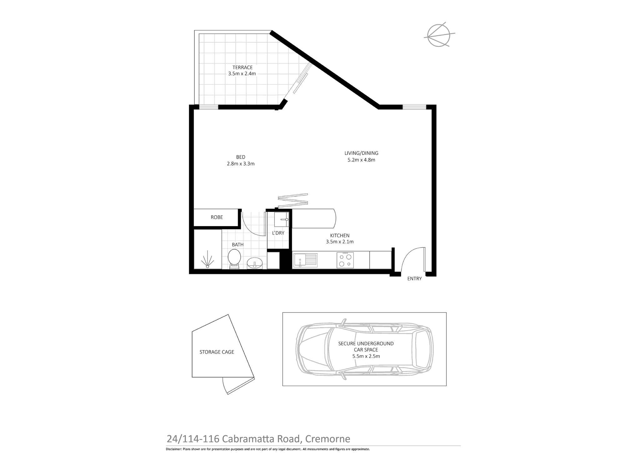
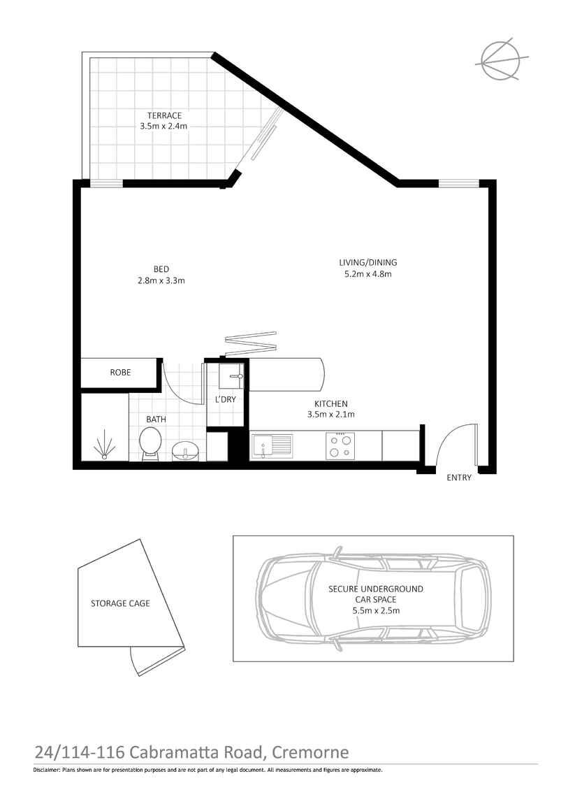
> A good-sized open plan design with living and dining areas
> Private courtyard that leads directly off the living space
> Quality granite kitchen with gas cooktop and dishwasher
> Spacious bedroom featuring a large built-in wardrobe
> Modern bathroom plus a separate internal laundry
> Timber flooring and air conditioning
> Lift access to a security basement car space and storage cage
> Walk to Cremorne Plaza and regular CBD transport connections
> A prime opportunity for market newcomers and investors
Outgoings p.q. approx.:
Strata $722; Council $288; Water $151.
















