Property Details
Online Auction 3rd July 2.30pm – contact agent for registration details.
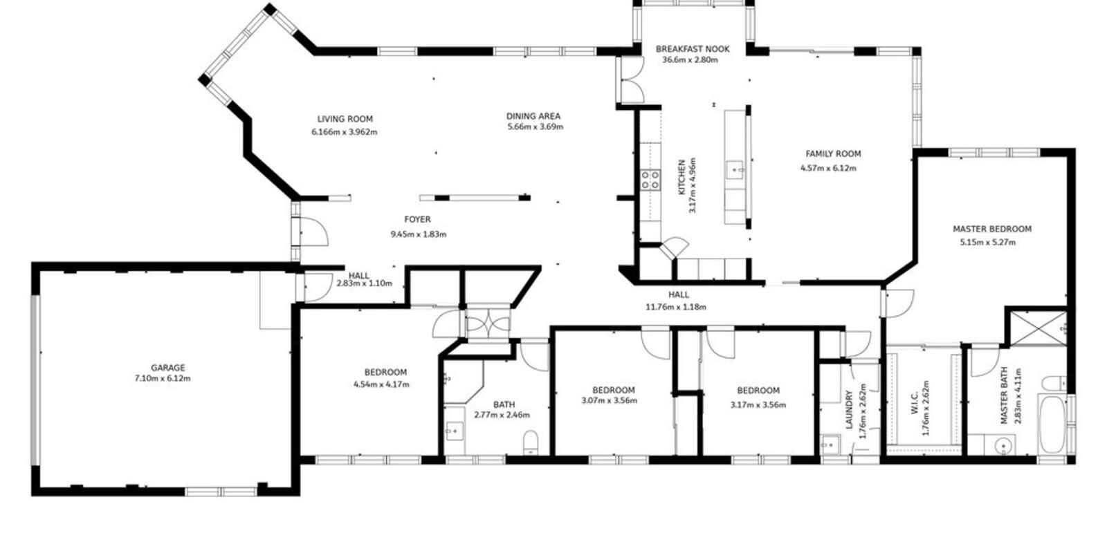
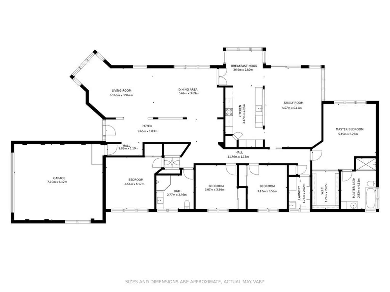
This bright and spacious residence offers the perfect location, size and layout for any family looking to get started in a well-proportioned home in a quiet leafy neighbourhood. Positioned within the Killara High catchment and just around the corner from the golf course, it makes a standout property that will spark the interest of those wanting to acquire a solid four-bedroom property with immediate live-in options and a premium setting that's walking distance to the train station, shopping and amenities in downtown Gordon.
> Set on a generous level block with beautifully manicured gardens
> Beautifully presented with stained-glass windows and detailed finishes
> A well-planned interior layout with good separation of living spaces
> Open lounge and dining areas and great natural light throughout
> Four peaceful double bedrooms each enjoy a private leafy outlook
> Large master suite with a huge walk-in wardrobe and full bath ensuite
> Paved entertainment space that overlooks a sunlit level lawn
> Ducted air-conditioning, alarm, and double garage with internal access
> Presented in great condition with scope to update down the track
"This is one you have to see"
For the health and safety of our clients, the community, and our staff, we ask that if you are experiencing flu-like symptoms (such as fever, coughing & shortness of breath) DO NOT ATTEND the inspection.


























