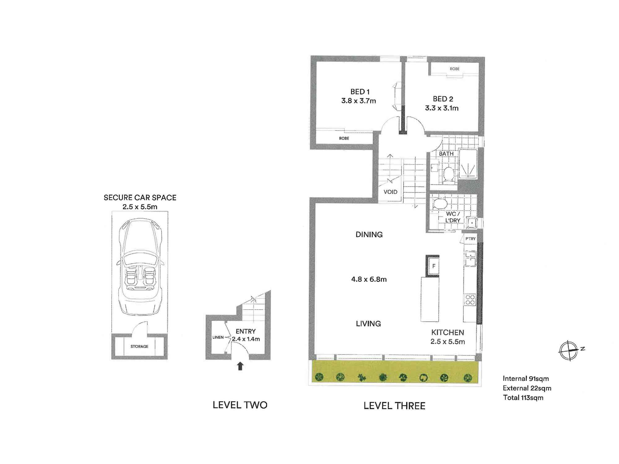
Property Details
Situated in the award-winning "Hampden Court Apartments" this stylish, light and bright two-bedroom split level apartment has great views to Sydney Harbour and beyond. Located on the 1st floor, the apartment has two bedrooms, both with built-ins and floor to ceiling windows overlooking the established gardens, a renovated kitchen and bathroom, an internal laundry with a second toilet, and a generously sized combined living/dining area. There are full width windows which showcase the spectacular views from the living & kitchen area as well as promoting a sense of light and space throughout. The galley shaped kitchen has a breakfast area where you can sip your coffee in the mornings enjoying the northern light from one window and the harbour view from the other. The dedicated car space on the ground floor is in a security carpark and has a secure storage room.
Architect Robin Dyke who designed the "Hampden Court Apartments" was awarded the Royal Australian Institute of Architecture (NSW) Merit Award in 1982. The complex features a sparkling outdoor pool in a relaxed garden setting and lovely common areas. Its location is superb, just a few metres to North Sydney dining, shopping and transport with harbour side parks and attractions within easy reach. Enjoy a convenient, secure and peaceful lifestyle in this tightly held location.
- Boutique block of 23 apartments, no two are the same
- Every element of the apartment has been upgraded
- North facing windows stream sunlight into kitchen, living and laundry areas
- Galley style kitchen with gloss white cabinetry throughout and a sizeable island bench
- Bathroom with dual shower heads and independent controls, Villeroy & Bosch hand basin & LED under cabinet lighting
- Conveniently positioned by the pool and alternative (rear) access to secure garage
- Walking distance to North Sydney CBD, transport, cafes, shops and restaurants
- Take in the 2019 Sydney Harbour fireworks
- Size: 95sqm + 14sqm parking + 2sqm storage
- Outgoings (p.q. approx.): Council $245; Water $172; Strata $2,317




















