Property Details
Ray White Commercial Sydney North and Richardson & Wrench North Sydney as the exclusive selling agents are pleased to present 773 - 775 Military Road, Mosman for sale via Auction.
Ray White Commercial Sydney North in conjunction with Richardson & Wrench North Sydney presents for your consideration an outstanding opportunity to obtain a double fronted mixed use investment property with development potential for the astute investor/developer to capitalise on the current market.
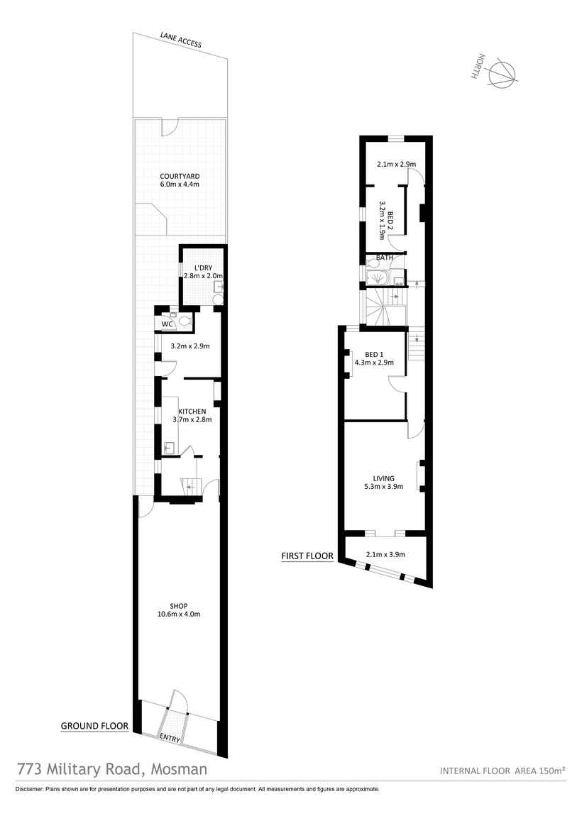
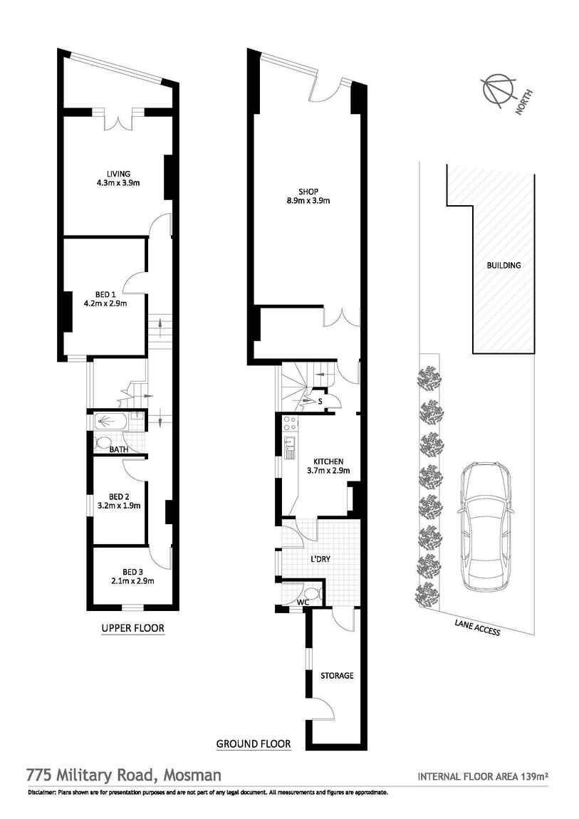
Perfectly positioned in the heart of Mosman Village, these mixed-use freehold properties offer 302 sqm* of Land with 9m* street frontage to Military Road and rear lane access to Carney Lane, accessing Raglan Street West Car Park with 59 car spaces. Spanning 289 sqm*, the property consists of two prominent retail premises on the ground floor, with both retail tenants utilising the level one commercial space as part of their tenancy, complete with parking for up to three cars at the rear of the property.
The property currently offers a gross income of $211,357 per annum + GST*.
This outstanding high-traffic area is passed by thousands daily and is surrounded by successful long-standing national and local retailers and service providers including IGA Supermarket, Vintage Cellars, Hudson Meats, Australia Post, Chemist Warehouse, ANZ Bank and all of the major banks along with busy cafes and boutique shops.
Property Highlights:
• 2x Mixed Use Properties sold in one line
• Double retail frontage to Military Road - Over 9m*
• Land Area | 302 sqm*
• Net Lettable Area | 289 sqm*
• Parking for 3x cars with Rear Lane Access
• Gross Income of $211,357 per annum + GST* with CPI Annual Rent Reviews
*All figures are approximate.
For further information or to arrange an inspection please contact:
Tim O'Halloran | 0403 902 392
tim@rwns.com.au
Scott Stephens | 0434 341 001
scott.stephens@raywhite.com
Building size
302 sqm (approx)
































