Property Details
A superb opportunity to capitalise on this freehold property in a Mixed Use zoning. The property will appeal to owner occupiers, investors and/or developers who can unlock the potential this property offers. Character filled, the property consists of a split level commercial building with two car spaces at the front of the property. Situated in a quiet yet convenient street close to the amenities that North Sydney has to offer, including the soon to be completed Metro Line. Plenty of metered parking on the street for visitors and only a short walk to transport infrastructure - this is your rare chance to buy a small mixed use commercial building in North Sydney!
The property is to be auctioned on the 11th of February, 2020 at 10.30am at Auctionworx, Level 1 Mezzanine Level, 50 Margaret St, Sydney NSW 2000
Inspect: By Appointment Only
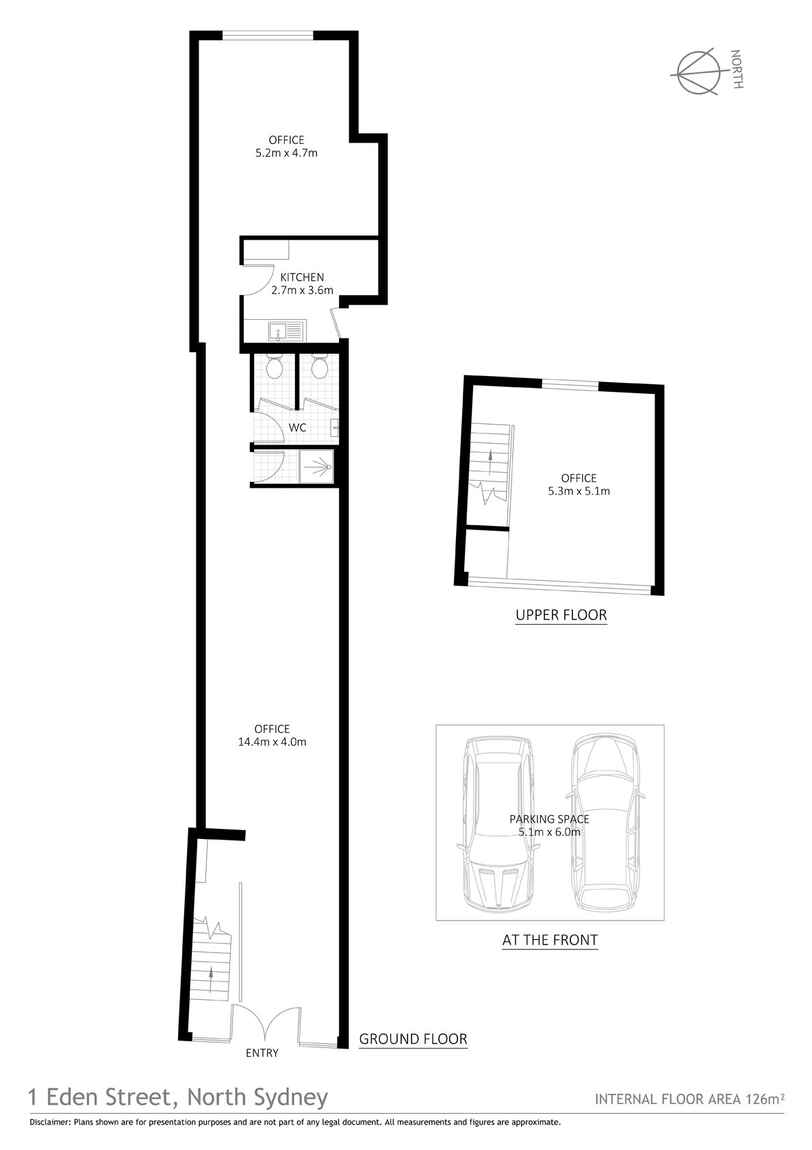
Land area
196 sqm (approx)
Building size
126 sqm (approx)










