23 Willoughby Road  Crows Nest
23 Willoughby Road  Crows Nest
23 Willoughby Road  Crows Nest
23 Willoughby Road  Crows Nest
5 photos
Leased

23 Willoughby Road Crows Nest

Leased

23 Willoughby Road Crows Nest

Leased
Contact Agent

GOLDEN MILE SHOP

Property Details

23 Willoughby Road offers the chance to set up shop on Crows Nests' 'Golden Mile'.

Key property features include:

- Prominent Willoughby Rd location
- Huge street frontage
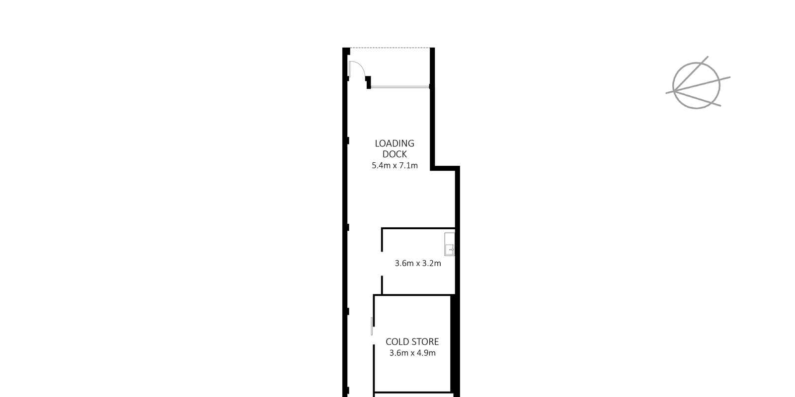
- Rear Lane Access with large loading dock
- Grease trap, exhaust and large cool rooms
- Close proximity to Woolworths shopping centre and North Sydney Council car park as well as Crows Nest Metro Station
- Currently fitted out as a fully operational butchery and ready to move in and get operating however would suit a large range of uses


Contact Cameron McEwan on 0499 004 993 or Tim O'Halloran on 0403 902 392

Available documents for download

Building size

240 sqm (approx)

Share on

23 Willoughby Road  Crows Nest
×
23 Willoughby Road  Crows Nest
23 Willoughby Road  Crows Nest
23 Willoughby Road  Crows Nest
23 Willoughby Road  Crows Nest
23 Willoughby Road  Crows Nest
FAQ

Do I need to be there for open homes or inspections?

Not at all. We’ll handle everything professionally, respecting your time and space while ensuring buyers feel welcome and informed.

How should I prepare my home for sale?

Presentation matters. From minor touch-ups to expert styling, we’ll guide you on how to showcase your home in its best light—inside and out.

What should I look for in a real estate agent?

Experience, communication, and local knowledge count. You want someone who listens, guides you with honesty, and knows how to get results—now and always.

What’s a property appraisal, and why does it matter?

A professional appraisal gives you a clear understanding of your home’s current market value—an essential first step in planning your sale with confidence.

When’s the right time to sell?

The ‘perfect’ time depends on your property, your goals, and the market. We’ll help you weigh the factors and decide what works best for you.

Will I need to pay Stamp Duty?

Stamp Duty usually applies to buyers, but rules can vary. We can connect you with trusted legal and financial advisors to make sure everything’s covered.

‘What’s the best way to market my property?’

The best marketing strategy is one that’s tailored—to your home, your audience, and the current market. It’s not about ticking boxes; it’s about standing out where it matters. That means combining strong digital reach with compelling visuals, authentic storytelling, and targeted strategy. If you’re thinking about selling Talk to us today.

DON’T MISS A MOMENT.